PRODÁNO

 

Dům k rekonstrukci s krásným výhledem na Jičín a

 rozhlednu Tábor

 

HRÁDKA | LOMNICE NAD POPELKOU

FOTOGALERIE

POPIS DOMU

Prodej menšího domku, který je umístěný na krásném místě, ze kterého budete mít Jičín a rozhlednu Tábor jako na dlani.

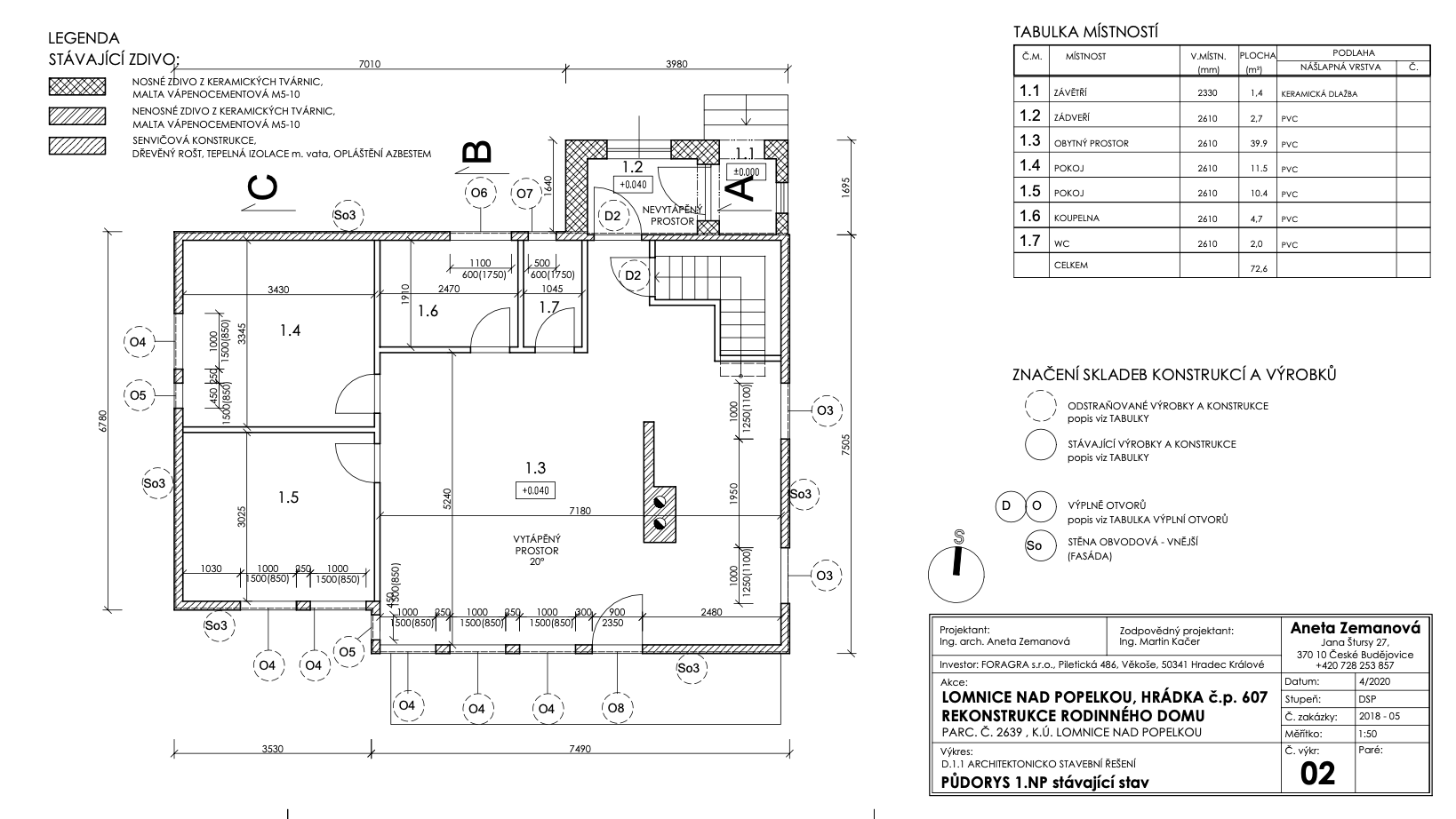
Dům je vhodný k celkové rekonstrukci. Na rekonstrukci domu je již připravená projektová dokumentace, která je součástí prodeje a počítá s tím, že zděné 1. podzemní podlaží bude zachováno a bude se rekonstruovat, montované 1. nadzemní podlaží se celé zbourá a postaví se znovu.

Celková užitná plocha domu ve dvou podlažích je 127 m². Důležité je, že se v projektu počítá i s  novým balkonem, ze kterého si budete každý den vychutnávat nádherný výhled.

Dům je napojený na elektřinu, obecní vodovod a odpad je sveden do jímky.

Vzhledem k tomu, že průkaz energetické náročnosti budovy zatím nebyl vypracován, uvádím dle zákonné povinnosti třídu G.

ZÁKLADNÍ INFORMACE

Celková cena: 2.500.000 Kč

  • AdresaHrádka 607, 512 51 Lomnice nad Popelkou
  • Okres: Semily
  • Stav objektu: K rekonstrukci
  • Velikosti pozemku1522 m²
  • Zastavěná plocha: 86 m²
  • Užitná plocha: 127 m²
  • 1. PP: 54,5 m²
  • 1. NP: 72,6 m²
  • Počet podlaží: 2
  • Elektřina: 230 V
  • Obecní vodovod: Ano
  • Odpad: Jímka
  • Komunikace: Asfaltová 
  • Doprava: Autobus

DŮM S POZEMKEM 430 m²

ORNÁ PŮDA 1092 m²

ADRESA POZEMKU

3D PROCHÁZKA OKOLÍ

PŮDORYS 1. PODZEMNÍHO PODLAŽÍ (zděné)

PŮDORYS 1. NADZEMNÍHO PODLAŽÍ (montované)

PŮDORYS 1. PODZEMNÍHO PODLAŽÍ – NAVRHOVANÝ NOVÝ STAV 

PŮDORYS 1. NADZEMNÍHO PODLAŽÍ – NAVRHOVANÝ NOVÝ STAV 

Zkuste si spočítat nezávazně
hypotéku na tuto nemovitost