REZERVOVÁNO

 

Krajní řadový dům se dvěma byty 3+1 a zahradou

 

Hořice v Podkrkonoší

VIDEOPROHLÍDKA

VIRTUÁLNÍ PROHLÍDKA

POPIS NEMOVITOSTI

Krajní řadový dům v klidné Třešňové ulici v Hořicích v Podkrkonoší. Dům stojí na pozemku o velikosti 486 m² a má tři podlaží s celkovou užitnou plochou 237,6 m².
Najdete zde dvě samostatné bytové jednotky. Byt č. 1 o velikosti 83,8 m² a byt č. 2 o velikosti 84,3 m². Celková plocha k užívání domu je 311,5 m². V suterénu se nachází koupelna a dva pokoje, kde může vzniknout další byt o dispozici 2+kk. Díky tomu je dům vhodný nejen pro rodinné bydlení, ale také jako zajímavá investice.

Nad rámec užitné plochy budete mít k dispozici garáž, terasu, dvě lodžie, sklep o velikosti 20,3 m² a na zahradě pergolu s příjemným posezením. Nemovitost je v původním stavu, vhodná k rekonstrukci, ale obyvatelná ihned. Vytápění zajišťují odporové smyčky, ohřev vody bojler, okna jsou původní dřevěná a střecha byla v roce 2021 obnovena střešní lepenkou. K dispozici je elektřina 230/400 V, obecní vodovod i kanalizace a přístup je po asfaltové komunikaci.

Hořice nabízejí skvělé možnosti pro rodinný život. Ve městě najdete veškerou občanskou vybavenost, dobré autobusové i vlakové spojení a po dokončení nového úseku dálnice D35 se ještě zlepší dostupnost do Hradce Králové i Jičína. Volný čas můžete trávit na procházkách v přírodě – oblíbeným cílem je například nedaleký vrch Gothard s pískovcovými plastikami a Riegrův obelisk, které dodávají tomuto místu jedinečnou atmosféru.

Pokud hledáte prostorný dům s velkým potenciálem v lokalitě, kde máte historii i přírodu na dosah, pak by právě tato nemovitost mohla být vaším novým domovem.
Budu se těšit, až vás osobně provedu domem a ukážu vám jeho skutečný potenciál.

ZÁKLADNÍ INFORMACE

Celková cena: 6.200.000 Kč

  • Adresa: Třešňová 1980, 508 01 Hořice
  • Kraj: Královéhradecký
  • Okres: Jičín
  • Velikosti pozemku: 486 m2
  • Dispozice 1.NP: 3+1 + pracovna (83,8 m²)
  • Dispozice 2.NP 3+1 (84,3 m²)
  • Počet podlaží: 3
  • Celková užitná plocha domu: 237,6 m²
  • Celkově k užívání: 311,5 m²
  • Zastavěná plocha: 117,9 m²
  • Vlastnictví: Osobní
  • Budova: Cihlová
  • Stav objektu: Vhodný k rekonstrukci
  • Sklep: 20,3 m²
  • Lodžie 1.NP 6,5 m²
  • Terasa 1.NP 8,5 m²
  • Lodžie 2.NP 6,5 m²
  • Pergola: 10,5 m²
  • Střecha: Střešní lepenka z roku 2021
  • Vytápění: Odporové smyčky
  • Elektřina: 230 V, 400 V
  • Ohřev vody: Bojler
  • Odpad: Veřejná kanalizace
  • Voda: Obecní vodovod
  • Doprava: Autobus, vlak
  • Komunikace: Asfaltová
  • PENB: G

FOTOGALERIE RODINNÉHO DOMU

EXTERIÉR RODINNÉHO DOMU

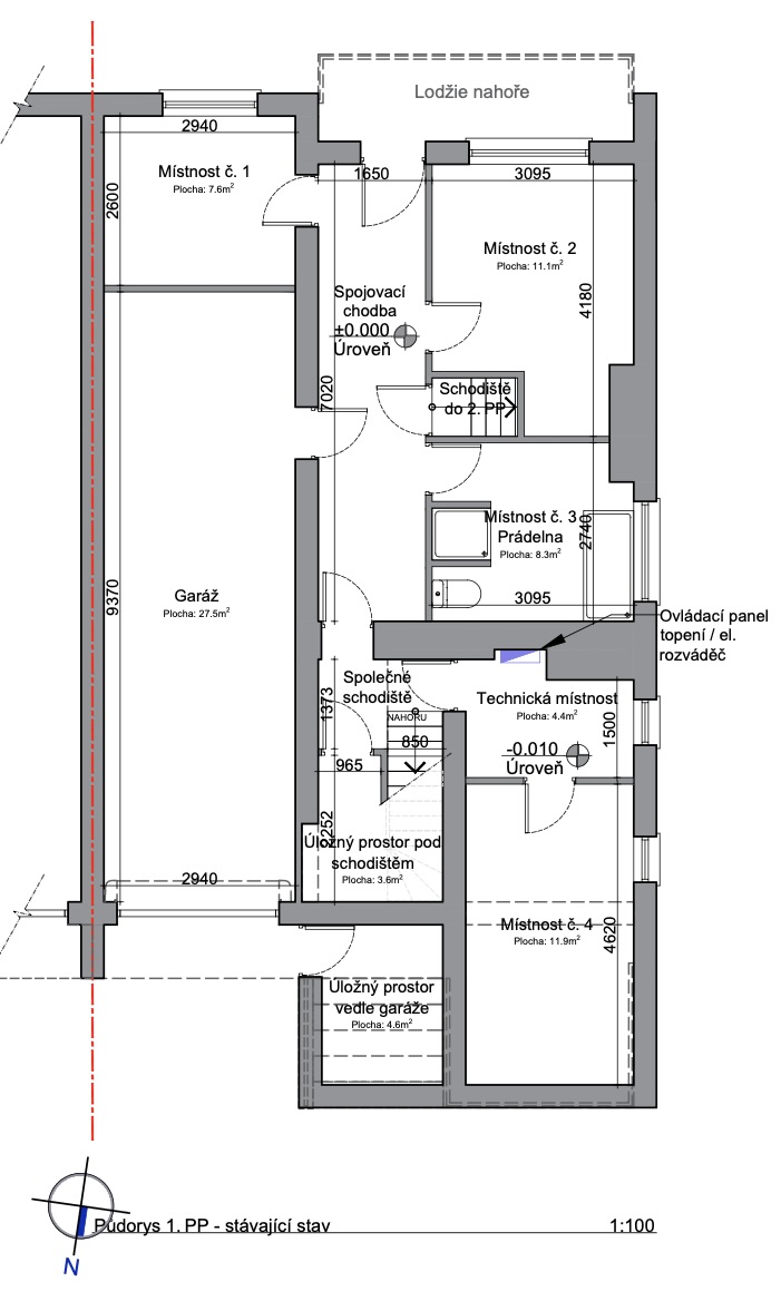
SUTERÉN

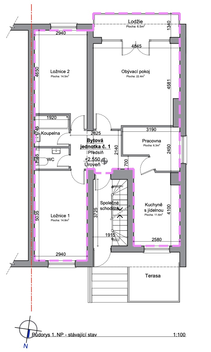
1. NADZEMNÍ PODLAŽÍ

2. NADZEMNÍ PODLAŽÍ

LETECKÝ SNÍMEK

KATASTRÁLNÍ MAPA

ADRESA DOMU

PROCHÁZKA OKOLÍ

PŮDORYS RODINNÉHO DOMU

SUTERÉN

1. NADZEMNÍ PODLAŽÍ

2. NADZEMNÍ PODLAŽÍ

ROZMĚRY JEDNOTLIVÝCH MÍSTNOSTÍ

1. Podzemní podlaží
Místnost 1 7,6
Místnost 2 11,1
Prádelna 8,3
Technická místnost 16,3
Chodba 10,8
Úložný prostor pod schodištěm 4,6
Užitná plocha 1. Podzemního podlaží celkem 58,7
1. Nadzemní podlaží
Vstupní prostor 5,4
Kuchyň s jídelnou 11,6
Ložnice 1 14,8
Pracovna 6,3
Chodba 9,6
WC 1,8
Koupelna 2,8
Ložnice 2 14,5
Obývací pokoj 22,4
Užitná plocha 1. nadzemního podlaží celkem 89,2
2. Nadzemní podlaží
Vstupní prostor 5,4
Kuchyň s jídelnou 18,9
Ložnice 1 14,8
Chodba 9,6
WC 1,8
Koupelna 2,8
Ložnice 2 14,5
Obývací pokoj 21,9
Užitná plocha 2. nadzemního podlaží celkem 89,7
CELKOVÁ UŽITNÁ PLOCHA DOMU 237,6
Další podlahová plocha
Sklep 20,3
Úložný prostor vedle garáže 4,6
Garáž 27,5
Celkem 52,4
Venkovní prostory
Pergola
Lodžie v 1.NP 6,5
Terasa v 1. NP 8,5
Lodžie v 2.NP 6,5
Celkem 21,5
CELKOVĚ K UŽÍVÁNÍ 311,5